1.4种焊接方法以及其表示方法,1.4.1是常用焊接方法代号的表示方式。
表示各种焊接方法的是用数字简明呈现的焊接方法代号,在《焊接及相关工艺方法代号》(GB/T 5185—2005)里规定了采用阿拉伯数字代号来表示各种焊接方法,其配套《焊缝符号表示法》(GB/T 324—2008)使用,并在图样上进行标注。
常用焊接方法的代号见表1-23。
表1-23 常用焊接方法的代号
示于表1-23,每种焊接方法能够借由代号予以识别,焊接及相关工艺方法常常运用三位数代号来表示,当中,一位数代号表征工艺方法大类,两位数代号表征工艺方法分类,三位数代号表征某一种工艺方法。
1.4.2 常用的电弧焊工艺
![图片[1]-1.4 焊接方法及其表示方法-铆焊老刘铆工焊工笔记](/wp-content/uploads/2026/04/1775565959676_0.jpg)
图1-81 焊条电弧焊原理
1—药皮,2—焊芯,3—保护气,4—电弧,5—熔池,6—母材,7—焊缝,8—焊渣,9—熔渣,10—熔滴。
1.焊条电弧焊
焊条电弧焊,是一种电弧焊方法,是通过手工来操纵焊条进行焊接的。它借助焊条与焊件之间构建起的稳定燃烧电弧,让焊条和焊件能够熔化,进而获取稳固的焊接接头,其原理如同图1-81所展示的那样。处于焊接进程时,药皮持续分解、熔化,进而生成气体以及熔渣,对焊条端部、电弧、熔池及其附近区域予以保护,避免大气给熔化金属带来有害污染。焊芯同样在电弧热的作用下,持续熔化,进入熔池,变为焊缝的填充金属。
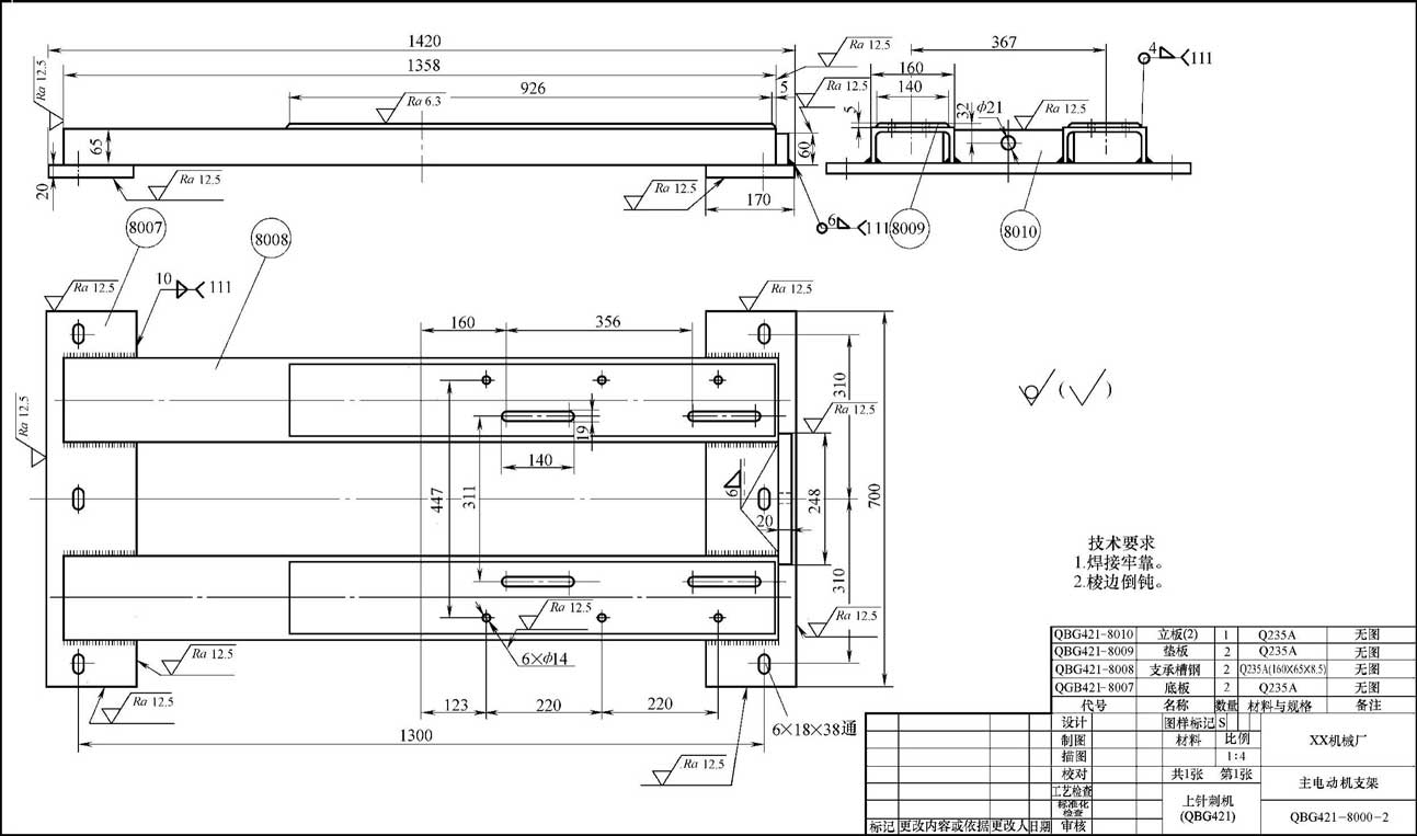
经常被应用于焊接结构制造及维修之中的是焊条电弧焊。图1 – 82所展示的乃是主电动机机架装配图,其由底板、立板、垫板以及支承槽钢这四个零件组焊而成,所采用的材料是焊接性相对较好的Q235A,垫板的板厚为5mm,此为四个零件里壁最薄之处,在对焊条进行选择期间要留意到这一点。技术要求里规定所有焊件焊接完成之后要求牢固可靠。
如图1-82所示,
呈现立板与底板之间的角焊缝,其焊脚尺寸为6mm,是单面周围角焊缝,111所代表的焊接方法为焊条电弧焊。
指的是垫板跟支承槽钢二者之间的连接角焊缝,其焊脚尺寸为4mm ,系单面周围角焊缝,焊接方法乃是焊条电弧焊。
支承槽钢和底板之间的焊接符号为
用来表示那种,呈现对称状态的角焊缝接头,其焊脚的尺寸呢,是10mm,并采用焊条电弧焊这种焊接方法。
2.埋弧焊
有一种焊接方法叫埋弧焊,它是让电弧在焊剂层的下方燃烧来实施焊接的,这种方式借助焊丝与焊件之间燃烧的电弧产出热量,进而熔化焊丝、焊剂以及母材,以此形成焊缝,其中焊丝充当填充金属,焊剂对焊接区域起到保护以及合金化的作用,由于焊接的时候电弧被掩埋在焊剂层下面燃烧,电弧光不会向外露出,故而被称作埋弧焊。
如下呈现的是埋弧焊的焊接过程,如图1 – 83所示。于焊接之时,电源的两极,其一接在导电嘴11上面,另一极接在焊件7之上,焊丝借助导电嘴与焊件相互接触,在焊丝的周边位置撒上焊剂,随后接通知电源,如此一来,电流经由导电嘴、焊丝以及焊件形成焊接回路。于焊接期间,焊机的起动这一过程、引弧的这般举动、送丝的操作行为、机头(或者是焊件)移动的这类情况等,全部由焊机进行机械化控制,焊工仅仅需要依照动相应的按钮便能够完成焊接工作。
![图片[2]-1.4 焊接方法及其表示方法-铆焊老刘铆工焊工笔记](/wp-content/uploads/2026/04/1775565959676_1.jpg)
图1-82 的主电动机机架装配图
![图片[3]-1.4 焊接方法及其表示方法-铆焊老刘铆工焊工笔记](/wp-content/uploads/2026/04/1775565959676_2.jpg)
图1-83 埋弧焊的焊接过程
a)焊接过程 b)纵向断面 c)横向断面
1是焊剂,2为焊丝,3属电弧,4乃熔池,5是熔渣,6叫焊缝,7称焊件,8为焊渣,9是焊剂漏斗,10是送丝滚轮,11为导电嘴。
电弧在焊丝与焊件之间被引燃之后,电弧中的热量致使其周围的焊剂处于熔化状态进而形成熔渣。部分焊剂会得以分解并且蒸发成为气体。这些气体随即排开熔渣从而能形成一个气泡。电弧就在这个所形成的气泡当中进行燃烧。焊丝连续不断送入电弧,在电弧具备的高温作用之下,焊丝被加热而熔化。熔化后的焊丝与已經处于熔化之态的母材会产生混合以形成金属熔池。熔带上有一个熔渣覆盖着。熔渣的外层是尚未被熔化掉的焊剂,它们共同对熔带予以保护,可以让熔带和周遭的空气相隔绝。并且还能够使得那些对操作存在妨碍的电弧光辐射没办法散射出去。电弧向前移动之际,电弧力把熔池里的液态金属排往后方,于是熔池前方的金属就外露于电弧强烈辐射之下进而熔化,形成新的熔池,而电弧后方的熔池金属则冷却凝固成为焊缝,熔渣也凝固成焊渣覆盖于焊缝表面。熔渣除对熔池以及焊缝金属起到机械保护作用以外,在焊接过程中还跟熔化金属产生冶金反应,进而对焊缝金属的化学成分有所影响。由于熔渣的凝固温度比液态金属的结晶温度低,熔渣总是比液态金属凝固得晚一些。这便致使混入熔池的熔渣,能得以不断地逸出,使溶解在液态金属里的气体,包含冶金反应里所产生的气体亦是如此,让焊缝不容易产生夹渣以及气孔等缺陷。未熔化的焊剂不光有着隔离空气的效能,具备屏蔽电弧光的作用,还提高了电弧的热效率。
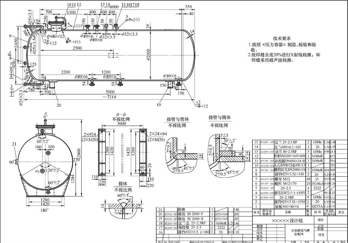
有一种焊接方法被称作埋弧焊,它是高效的,在工业生产里有一定程度的运用。有一张装配图,图号是1-84,所展示的是石油液化气罐。当中的椭圆封头9以及筒体12,选用了焊接性比较好的16MnR。二者之间存在环焊缝,此环焊缝运用的是埋弧焊。因为其板厚是14mm,属于中等板厚的范畴,所以采用开Y形坡口的方式。除此之外,法兰与筒体之间的焊缝、人孔与筒体之间的焊缝,大多采用的是焊条电弧焊。
如图1-84所示,
存在这样一种情况,它是对椭圆封头跟筒体之间的环焊缝进行表示,其中坡面角度为60°,钝边的尺寸是2mm,间隙的宽度是2mm以便进行封底焊,而且其中的12这一数字所代表的意思为焊接方法是埋弧焊。
用以表明人孔与筒体二者之间的焊缝,其焊脚尺寸为8mm,属于单边V形坡口角焊缝,111所代表的是焊接方法乃焊条电弧焊。
针对于法兰跟筒体二者之间所存在的焊缝而言,其焊脚尺寸为 5mm ,属于是角焊缝,借助 111 来明确表示焊接方法乃是焊条电弧焊。
![图片[4]-1.4 焊接方法及其表示方法-铆焊老刘铆工焊工笔记](/wp-content/uploads/2026/04/1775565959676_5.jpg)
图1-84 石油液化气罐装配图
3.熔化极气体保护焊
在金属焊接的众多方式里,有一种被称作熔化极气体保护焊的方法,该方法是借助连续等速送进的、能够熔化的焊丝,以及焊件之间所形成的电弧当作热源,以此来熔化焊丝与母材金属,进而形成熔池和焊缝。为了获取良好的焊缝,需要利用施加压力获得的外加气体当作电弧介质,并且保护熔滴、熔池金属以及焊接区高温金属,使其免受周围空气的有害作用,就如同图1-85所展示的那样。
熔化极气体保护电弧焊存在多种方法,每种方法都有其独特特点,低碳钢普遍采用CO2气体保护焊接法,运用熔化极活性混合气体保护焊(简称为MAG焊)能够获得稳定的焊接过程以及美观的焊缝,然而在经济性上说它没法和CO2气体保护焊相比,脉冲MAG焊在低于临界电流的低电流区间能够得到稳定的喷射过渡,焊接时飞溅小,焊缝成形也美观。
熔化极惰性气体保护焊,也就是简称为MIG焊的那种焊接方式,适用于对不锈钢以及铝、铜这类有色金属进行焊接,然而对于低碳钢来讲,它却是一种成本高昂的焊接方法,脉冲MIG焊跟脉冲MAG焊相类似,能够在低电流的区间达成稳定的喷射过渡。
用于全位置焊接的短路过渡焊接法,主要针对中、薄板焊接,它存在着飞溅较大以及成形不佳的状况,目前通过采用从焊接电源以及保护气体等方面着手、采取相应措施的方式,已经有了较为明显的改善。
![图片[5]-1.4 焊接方法及其表示方法-铆焊老刘铆工焊工笔记](/wp-content/uploads/2026/04/1775565959676_6.jpg)
图1-85 熔化极气体保护焊

序号1所指为焊丝盘,序号2是送丝滚轮,序号3为焊丝,序号4乃导电嘴,序号5是保护气体喷嘴,序号6是保护气体,序号7为熔池,序号8是焊缝金属,序号9是电弧,序号10是母材。
金属极气体电弧焊 GMAW 工艺,采用连续送丝,有着高电流密度。故而,焊丝熔敷效率颇高。焊接变形相对较小。熔渣极为微量,且便于清理。所以得出,该工艺乃是一种高效节能的焊接方法。
(1)熔化极电弧焊方法里,有一种利用CO2作为保护气体的,叫CO2气体保护焊,它把CO2气体当作保护介质,以此让电弧以及熔池与周遭空气隔离开,避免空气中氧、氮、氢对熔滴和熔池金属产生有害作用,正因如此能得到优良的机械保护性能。
CO2气体保护焊具有以下优点:
1)因其电弧热量利用率较高,且焊接电流密度较大,同时焊后无需清渣,故而焊接生产率高,能够获得较高的生产率,CO2焊的生产率比普通的焊条电弧焊高2至4倍。
2)进行焊接时成本不算高,二氧化碳气体的来源较为广泛,其售卖价格较为低廉,用来进行焊接情况下整体电能消耗也较少,正因为如此这使得焊接成本得以降低,一般来说在焊接工艺里二氧化碳焊的成本仅为埋弧焊或焊条电弧焊成本的百分之四十以至上至百分之五十。
3)焊点变形程度微小得很嘛。这是由于电弧加热呈现出高度聚焦的态势,致使焊件被加热的面积相对而言比较小,并且呢,CO2气流具备颇为显著的冷却效能,所以焊接时产生的形变程度是微乎其微的,尤其适宜用于薄板的焊接作业。
4)焊接质量较高。对铁锈敏感性小,焊缝含氢量少,抗裂性能好。
5)能适用于广泛的范围,可以达成全位置的焊接,而且针对薄板能够焊接,针对中厚板也能够焊接,针对厚板同样能够焊接。
6)其操作具备简便的特性,在完成焊接之后并不需要进行清渣的处理,并且呈现出明弧的状态,这十分便于开展监控工作,进而对实现机械化以及自动化焊接有着积极的促进作用。
CO2气体保护焊主要用于焊接低碳钢以及低合金钢,对于不锈钢而言,因焊缝金属存在增碳现象,会影响抗晶间腐蚀性能,所以仅能用于对焊缝性能要求不高的不锈钢焊件,此外,CO2气体保护焊还可用于耐磨零件的堆焊、铸钢件的焊补以及电铆焊等方面,目前CO2气体保护焊已在汽车制造、机车和车辆制造、化工机械、农业机械、矿山机械等行业被广泛应用。
(2)有一种电弧焊接方法叫MIG焊,它采用惰性气体当作保护气体,把焊丝用作熔化电极,这种方法通常用氩气、氦气或者它们的混合气体作为保护气体,连续送进的焊丝同时作为电极和填充金属,在焊接进程中焊丝持续熔化并过渡到熔池中进而形成焊缝,在焊接结构的生产当中,尤其是在高合金材料以及非铁金属及其合金材料的焊接生产里,MIG焊都占据着很重要的位置,其焊接原理如图1-86所示。
当MIG焊应用范围得以扩展时,仅仅以Ar或者He当作保护气体已然难以满足需求了,于是发展出了在惰性气体里添加少量活性气体诸如O2、CO2等构成混合气体当作保护气体的方式,一般把这种方式称作熔化极活性混合气体保护焊,简单称呼为MAG焊。鉴于MAG焊不管是原理、特点还是工艺,都与MIG焊相类似,故而把它归入MIG焊里面一同进行讨论。
![图片[7]-1.4 焊接方法及其表示方法-铆焊老刘铆工焊工笔记](/wp-content/uploads/2026/04/1775565959676_8.jpg)
图1-86 MIG焊的原理
1是焊件,2是电弧,3是焊丝,4是焊丝盘,5是送丝滚轮,6是导电嘴,7是保护罩,8是保护气体,9是熔池,10是焊缝金属。
MIG焊通常会采用惰性气体当作保护气体,和CO2气体保护焊相比,和焊条电弧焊比较,以及同一类熔化极电弧焊而言,它带有后续这些特点:
1)在 MIG 焊之中呀,因为采用惰性气体当作保护气体,所以保护效果是挺好的,进而焊接过程稳定,此阶段变形小,飞溅更是极少甚至根本就没有飞溅,这使得焊接质量好。另外呢,在焊接铝及铝合金的时候能够采用直流反极性,并且具有良好的阴极破碎作用。
2)焊丝被用作电极的MIG 焊,能采用大电流密度焊接,母材熔深大,焊丝熔化速度快,焊接大厚度铝、铜及其合金时长于钨极惰性气体保护焊,焊接生产率高。与焊条电弧焊比,可以连续送丝,节省材料加工工时,焊缝无需清渣的 MIG 焊,生产率更高。
3)宽泛的适用范围存在,MIG焊以惰性气体作保护气体,此气体不与熔池金属发生反应致使保护效果颇佳,几乎所有金属材料皆能被焊接故而范围广。源于惰性气体生产成本高昂价格不菲,所以如今熔化极惰性气体保护焊主要应用于非铁金属及其合金的焊接,还有不锈钢及某些合金钢的焊接。
MIG焊存在无脱氧去氢作用这一短处,所以此对于母材与焊丝之上的油、锈极为敏感,容易形成缺陷,故而MIG焊针对焊接材料表面清理要求格外严格。除此之外,MIG焊的抗风能力欠佳,不适宜用于野外焊接,并且焊接设备也相对复杂。
适合采用MIG焊来焊接的材料有低碳钢、低合金钢、耐热钢、不锈钢、有色金属及其合金,像铅、锡、锌等低熔点或是低沸点金属材料不宜采用MIG焊,目前中等厚度、大厚度铝及铝合金板材已广泛采用MIG焊且所焊产生的最薄厚度约为1mm,大厚度基本没有加以限制,不仅如此MIG焊能够区分成半自动和自动两种。较规则的纵缝、环缝以及处于水平位置的焊接,自动MIG焊适用;定位焊、短焊缝、断续焊缝,乃至铝容器里的封头、管接头、加强圈等的焊接,半自动MIG焊大多会被用于。
为某起重机厂运输架结构图的展示呈现于图1 – 87,存在部分尺寸标注于其中被省略,目的是赋予读者更清晰的观览效果,构件借助角钢与筋板以及其他部件以组焊的方式形成,其运用的材质是Q235B,经由高效且低成本的CO2气体保护焊来实施立板和平板焊缝的焊接工作,剩余部分则采用焊条电弧焊进行焊接。
![图片[8]-1.4 焊接方法及其表示方法-铆焊老刘铆工焊工笔记](/wp-content/uploads/2026/04/1775565959676_9.jpg)
图1-87 某起重机厂运输架构图
如图1-87所示,
所述的,是表示,位于最左侧的3号角钢与1号角钢之间的,角焊缝,其焊脚尺寸为5mm,且是双面焊。尾注里面提到的8,意味着共有八处,这样的焊缝,而135则表明,焊接方法是CO2气体保护焊。
表明,4号角钢跟后面竖立着的3号角钢之间,存在着焊脚尺寸为5mm的三面角焊缝,其焊接方法是CO2气体保护焊,总共有着四处。
这里表明,7号角钢,与前面竖立着的3号角钢,二者之间存在着焊脚尺寸为5mm的三面角焊缝,焊接所采用的方法是CO2气体保护焊,这种情况一共有四处。
称筋板与先前竖向而立的3号角钢间为对称的角焊缝,其焊脚尺寸为5mm,总计有16处,按照第三章里焊缝符号的简化规定来讲,此地焊条电弧焊代号能够省略。
鉴于氩气属于一种惰性气体,于高温之际它不会跟金属产生化学反应,并且也不会溶解于液态金属之中,那样便能防止焊接进程里合金元素出现烧损以及因之引发的其他焊接方面的诸多瑕疵。TIG 焊主要是用来开展对铝、镁、铜、钛及其合金和不锈钢的焊接工作。当焊接厚板以及具有高导热率或是呈现高熔点特点的金属之时,亦能够选用氮气或氦氩混合气当作保护气体。在针对不锈钢、镍基合金和镍铜合金进行焊接工作之时则能够采用氩、氢混合气当作保护气体。
1.4.3 其他焊接方法
1.气焊
(1)简述,气焊,也就是图1-88所示的方式,它属于熔焊方法里借助气体火焰当作热源的那种,常常运用氧气与乙炔混合后燃烧的火焰来开展焊接作业,所以它又被称作氧乙炔焊呐。
气焊是一种焊接方法,可燃气体和氧气会通过焊枪,二者按照一定比例混合,从而获得具备所要求的火焰能率及特质的火焰 ,此火焰用作热源,将被焊金属以及填充金属熔化,使其形成牢固的焊接接头。
气焊之际,先把焊件焊接处的金属予以加热,使其达至熔化状态进而形成熔池,且持续不断地致使焊丝熔化,朝着熔池当中进行填充,气体火焰覆盖于熔化金属的表面上面,起到保护作用,伴随焊接过程的逐步推进,熔化金属冷却之后终形成焊缝,气焊过程呈现如图1-89所示的情形。
![图片[9]-1.4 焊接方法及其表示方法-铆焊老刘铆工焊工笔记](/wp-content/uploads/2026/04/1775565959676_15.jpg)
图1-88 气焊
![图片[10]-1.4 焊接方法及其表示方法-铆焊老刘铆工焊工笔记](/wp-content/uploads/2026/04/1775565959676_16.jpg)
图1-89 气焊过程示意图
1—用于混合气体的管子,2—用以焊接的部件,3—焊接所形成的缝,4—用于焊接的丝状材料,5—能产生的气焊火焰,6—焊接时使用的喷嘴。
(2)气焊的特点及应用

1)气焊具备这样一些优点,其设备是简单的,操作起来较为方便,成本为低的,适应性是强的,在不存在电力供应的地方能够方便地进行焊接,它能够焊接薄板,还能够焊接小直径薄壁管,在焊接铸铁、非铁金属、低熔点金属以及硬质合金的时候质量较为良好。
2)气焊存在着这样一些短处,火焰的温度是比较低的,加热呈现出分散的状态,热影响的区域较为宽阔,焊件发生的变形幅度较大,存在着严重的过热情况,与焊条电弧焊相比,接头质量不容易得到保证,其生产率比较低,不太容易去焊接较厚的金属,并且难以达成自动化。
根据上述所具备的那些特点来讲,气焊在当下的工业生产情形里,主要是被运用在对薄板进行焊接操作上,以及针对小直径薄壁管的焊接任务里,除此,还包括对铸铁、非铁金属、低熔点金属以及硬质合金等各类材料开展焊接工作。除此之外,气焊火焰能够被用于钎焊、喷焊以及火焰矫正等方面。
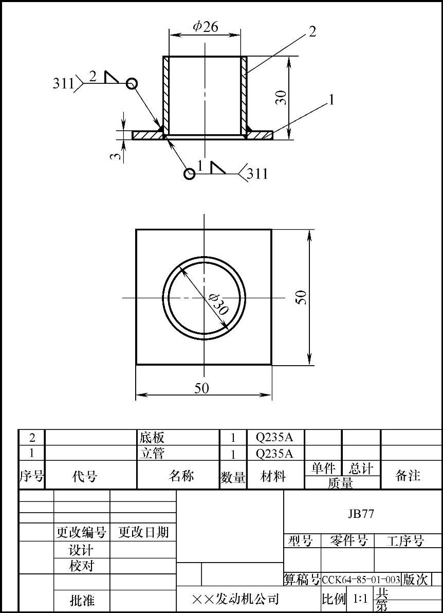
(3)呈现应用实例,图1 – 90所展示的是管座焊接的结构图示。管座是因为底板以及立管这两个部分组合焊接而形成的,其采用的材质是Q235A,所运用的焊接方式是气焊。
指出底板与立管二者之间的内侧焊缝,其焊脚尺寸是一毫米,且为周围单面角焊缝,311表示焊接方法是氧乙炔焊。
2.等离子弧焊
![图片[12]-1.4 焊接方法及其表示方法-铆焊老刘铆工焊工笔记](/wp-content/uploads/2026/04/1775565959676_19.jpg)
图1-90 管座焊接结构图
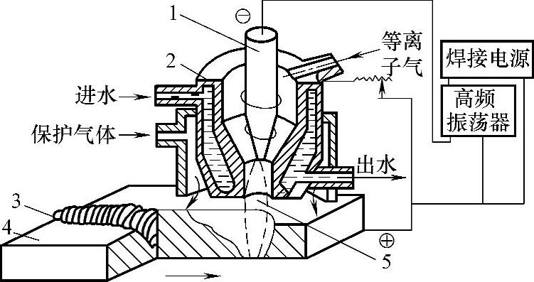
(1)概述,等离子弧是借助等离子枪,把阴极(像钨极)与阳极之间的自由电弧,压缩成具备高温、高电离、高能量密度以及高焰流速度的电弧。利用等离子弧来开展切割与焊接的工艺方法,被称作等离子弧切割和焊接,它不但能够切割和焊接常用工艺方法能够加工的材料,还能够切割或焊接一般工艺方法难以加工的材料,所以它在焊接与切割领域里是一门较有发展前途的先进工艺。
一种未受到外界压缩的,被称为自由电弧的,是一般的焊接电弧。自由电弧里的气体电离并不充分,能量无法高度集中,而且弧柱直径会随功率上升而增大,所以弧柱中的电流密度近乎是常数,其温度也就被限定在5730~7730℃。倘若是对自由电弧的弧柱采取压缩举措,强迫进行“压缩”,便能获取导电截面收缩得相对较小且能量更为集中的,弧柱中的气体基本达至全部电离状态的电弧——等离子弧。
当下被广泛运用的压缩电弧之方式,乃是把钨极往喷嘴里头缩进去,而且要在水冷喷嘴当中通入具备一定压力以及流量的离子气,迫使电弧经由喷嘴孔道,从而去形成具备高温、高能量密度的等离子弧。等离子弧的呈现乃如同图1-91所显示那般(等离子弧切割没有保护气以及保护罩),在这个时候电弧经受有如下三种压缩作用。
![图片[13]-1.4 焊接方法及其表示方法-铆焊老刘铆工焊工笔记](/wp-content/uploads/2026/04/1775565959676_20.jpg)
图1-91 等离子弧的形成
1是钨极,2为水冷喷嘴,3乃保护罩,4是冷却水,5是等离子弧,6叫焊缝,7是焊件也就是母材。
1)当把一个借助水来冷却的铜制喷嘴放置于其通道之上的时候,便会出现机械压缩行动。强迫那个“自由电弧”朝着细小的喷嘴孔之中通过,此情形下,弧柱直径因为受到小孔直径相应力度的某种阻碍,进而不能够自由自在地进行扩大,最终致使电弧截面遭受压缩。这样形成的一种作用被用以代指“机械压缩效应”。
2)物体拥有热收缩方面的作用,电弧借助水冷却的喷嘴,与此同时,它还会受到外部持续不断送来的高速冷却气流也就是氮气、氩气等的冷却影响,由此一来,弧柱的外围遭受强烈冷却,进而致使其外围的电离度大幅减弱,电弧电流仅仅能够从弧柱中心穿过,电弧的弧柱于是进一步被压缩,这种作用被称作“热收缩效应”。
3)有磁收缩作用,带电粒子于弧柱内运动之时,能够视作电流在一束平行“导线”内移动,鉴于这些“导线”自身磁场所生成的电磁力,致使这些“导线”彼此吸引,进而产生磁收缩效应,因前述两种效应致使电弧中心的电流密度已然很高了,让磁收缩作用显著增强,于是使得电弧进一步地遭受压缩。
电弧受到以上三种压缩作用之时,弧柱截面特别细,温度特别地高,弧柱内的气体也获得了高度的电离,进而形成稳定的等离子弧。
有一种焊接方法叫等离子弧焊接,它借助水冷喷嘴对电弧的拘束作用,从而获得能量密度较高的等离子弧来用于焊接,它是利用特殊构造的等离子焊枪产生高温等离子弧,可以在保护气体的保护下,通过熔化金属来实行焊接,就像图1-92展示的那样,它几乎能够焊接电弧焊能焊接的所有材料,还能够焊接多种难熔金属以及特种金属材料,并且具备诸多优越性。在极薄金属焊接这个方面,它解决了氩弧焊无法胜任的材料和焊件的焊接问题。根据焊缝成形原理存在差异,等离子弧焊具备穿孔型等离子弧焊,以及熔透型等离子弧焊,还有微束型等离子弧焊这三种基本方法。
![图片[14]-1.4 焊接方法及其表示方法-铆焊老刘铆工焊工笔记](/wp-content/uploads/2026/04/1775565959676_21.jpg)
图1-92 等离子弧焊接
1—钨极 2—喷嘴 3—焊缝 4—焊件 5—等离子弧
(2)等离子弧焊的特点 等离子弧焊与钨极氩弧焊相比具有下列特点:
1)等离子弧温度高,能量密度大也就是能量集中,熔透能力强,针对8mm或者更厚的金属,可不坡口,不添加填充金属直接施焊,能用比钨极氩弧焊高很多的焊接速度施焊,这不但提升了焊接生产率,还能减小熔宽,增大焊缝厚度,所以能减小热影响区宽度以及焊接变形。
2)因为等离子弧的形态跟圆柱形近似,挺直性良好,差不多在整个弧长范围都有着高温,所以,一旦弧长出现波动,熔池表面的加热面积改变不大,对焊缝成形的影响较小,易于得到成形均匀的焊缝。
3)缘于等离子弧具备良好的稳定性,尤其在采用联合型等离子弧之际,即便运用极小(大于0.1A)的焊接电流,依旧能够维持稳定的焊接进程。故而,能够对超薄的焊件实施焊接。
4)鉴于钨极缩在喷嘴内部,于焊接过程中不会和焊件相接触,故而,不但能够降低钨极损耗,还能够避免焊缝金属出现夹钨等缺陷。
(3)应用举例,在石油工业里使用的管路,(图 1―93),此管路在锅炉工业中也会用到,针对这样的管路是能够使用等离子弧焊的,图 1―94 展示的是对接钢管的结构图,其中管 1 以及管 2 的材质都是不锈钢,它们的壁厚是 1.0mm,采用等离子弧焊这种方式,是能够达成单面焊接双面成形效果的。
如图1-94所示,
表示左管和右管之间的环焊缝采用对接焊缝,等离子弧焊。
![图片[15]-1.4 焊接方法及其表示方法-铆焊老刘铆工焊工笔记](/wp-content/uploads/2026/04/1775565959676_23.jpg)
图1-93 石油和锅炉工业中的管路焊接作业图
![图片[16]-1.4 焊接方法及其表示方法-铆焊老刘铆工焊工笔记](/wp-content/uploads/2026/04/1775565959676_24.jpg)
图1-94 对接钢管结构图
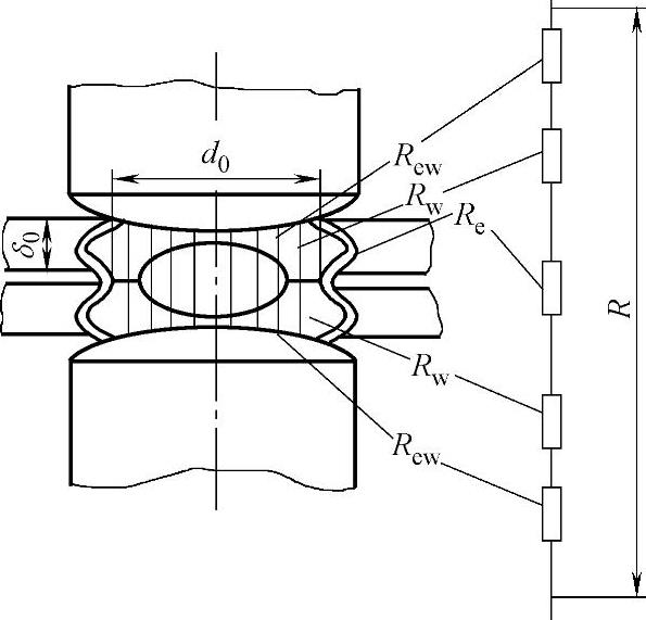
3.电阻焊
(1)这是一种焊接方法,它叫电阻焊,在此种焊接方法里,它属于压焊,并且是应用最为广泛的那种。熔焊不一样,熔焊是利用外加热源的,借此让连接处熔化,再凝固结晶,进而形成焊缝。而电阻焊呢,它是利用本身的电阻热,还有大量塑性变形能量,最终形成焊缝或者接头。再看电阻焊的应用,它在航空工业生产里有广泛应用,在汽车工业生产里也有广泛应用,在自行车工业生产里同样有广泛应用,在地铁车辆工业生产里也被广泛应用,在建筑行业工业生产里也有广泛应用,在量具工业生产里有广泛应用,在刃具工业生产里有广泛应用,在无线电器件工业生产里也有广泛应用。
焊件组合之后所采用的电阻焊,是借助电极施加压力的方式,利用能够产生电阻热的电流,通过接头的接触面以及邻近区域来展开焊接工作的方法。当采用电阻焊时,之所以会产生电阻热,其电阻涵盖了三部分,分别是焊件彼此之间产生的电接触阻,电极与焊件之间产生的电接触阻,以及焊件自身所具备的电阻。在进行点焊操作时,电阻的分布呈现出如图1-95所示的状况。
(2)电阻焊的特点 电阻焊与其他焊接方法相比具有以下特点:
1)由于属于内部热源,热量呈现集中状态,加热所需时间短暂,在焊点形成进程里一直被塑性环所环绕,故而电阻焊的冶金过程具备简单的特质,热影响区域较小,产生的变形不大,易于获取质量较为良好的焊接接头。
2)电阻焊,其焊接速度算是比较快的,尤其是针对点焊而言,甚至于在1s的时间内能够完成4至5个焊点的焊接操作,所以呢,它展现出的生产率是比较高的。
3)除消耗电能以外,电阻焊无需消耗焊条,无需消耗焊丝,无需消耗乙炔,也无需消耗焊剂等,能够节省材料,故而成本较低。
4)操作简便,易于实现机械化和自动化。
5)劳动条件改善,电阻焊所产生的烟尘、有害气体少。

6)由于焊接在短时间之内得以完成,这就需要运用大电流以及高电极压力,故而焊机容量大,致使设备成本比较高,维修起来相对困难,并且常用的大功率单相交流焊机对电网的正常运行起着不利作用。
![图片[18]-1.4 焊接方法及其表示方法-铆焊老刘铆工焊工笔记](/wp-content/uploads/2026/04/1775565959676_26.jpg)
图1-95 点焊时电阻分布
重新定义的电极与焊件接触电阻——Rw,焊件自身所具有的电阻——Rw,还有焊件彼此之间的接触电阻——Re。
![图片[19]-1.4 焊接方法及其表示方法-铆焊老刘铆工焊工笔记](/wp-content/uploads/2026/04/1775565959676_27.jpg)
图1-96 某起重机厂防护网的焊接结构图
7)电阻焊机大多工作固定,不如焊条电弧焊等灵活、方便。
8)以点焊、缝焊方式形成的、存在搭接情况的接头部分,不可避免地造成作为构件整体的质量有所增加,并且,由于两板之间在熔核周围形成了尖锐的角度,进而导致接头对应的抗拉强度以及疲劳强度出现降低的状况。
9)当下还欠缺简便且可靠的非破坏性检验办法,焊接质量得凭借工艺试样以及焊件的具有破坏性的试验来展开检验,借助各类监控技术予以确保。
电阻焊能分成对焊、缝焊、凸焊以及点焊这4种,当中电阻点焊、闪光对焊还有高频对接缝焊的运用较为广泛,主要是用于薄板搭接、杆件以及管件的对接等,在汽车、拖拉机、飞机和仪表制造等工业部门里被广泛使用。
(3)应用举例
1)实现电阻形式的点焊,图1至96所呈现的乃是某起重机厂防护网那种具备焊接属性的结构图形样貌;此防护网得以实现取决于直径设定成6mm数值的钢筋借助点焊达成组合,所采用的材料是Q235A这种具备比较良好塑性特质的类型并且它适宜于电阻焊这种焊接方式。
如图1-96所示,
展现钢筋相互间的点焊缝,焊点的直径是4mm,存在31个焊点,焊点的间距为10mm,21所代表的是焊接方法为电阻点焊。
2)缝焊,图1 – 97呈示的是汽车油箱的焊接结构图形,油箱是由箱底以及箱盖这两部分组合焊接形成的,其材料选用的是ϕ8钢,板材厚度是2.0mm,焊缝属于周围焊缝,油箱具备密封要求,焊接方法挑选的是电阻缝焊。
![图片[20]-1.4 焊接方法及其表示方法-铆焊老刘铆工焊工笔记](/wp-content/uploads/2026/04/1775565959676_29.jpg)
图1-97 汽车油箱的焊接结构图
如图1-97所示,
表示箱底和箱盖之间的焊缝是电阻缝焊。
4.钎焊
(1)说到钎焊(图1-98),它是这么一种连接方法,采用比焊件熔点低的金属材料当作钎料,把焊件以及钎料分别加热,使其达到高于钎料熔点,而低于焊件熔点的那般温度,借助液态钎料,让它去润湿母材,再填充接头间隙,并且与母材相互扩散,以此来达成连接,其具体过程就如同图1-99所展示的那样。
![图片[21]-1.4 焊接方法及其表示方法-铆焊老刘铆工焊工笔记](/wp-content/uploads/2026/04/1775565959676_30.jpg)
图1-98 钎焊
(2)钎焊的分类
1)钎焊依据钎料熔点的差异,能够划分成软钎焊以及硬钎焊,当所运用的钎料的熔点(或者液相线)比450℃低的时候,就称它为软钎焊,而高于450℃的那种,则称其为硬钎焊。
2)钎焊依据热源种类以及加热方式而存在差异,进而被划分成火焰钎焊、炉中钎焊、感应钎焊、电阻钎焊、电弧钎焊、激光钎焊、气相钎焊以及烙铁钎焊等等。其中最为简单且最为常用的属于火焰钎焊以及烙铁钎焊,火焰钎焊呈图1 – 100所示这样。
![图片[22]-1.4 焊接方法及其表示方法-铆焊老刘铆工焊工笔记](/wp-content/uploads/2026/04/1775565959676_31.jpg)
图1-99 钎焊过程
a)于接头之处安排钎料,同时针对焊件以及钎料予以加热,钎料出现熔化现象并开始朝着钎缝间隙流入,钎料将整个钎缝间隙填充完备,凝固之后构成钎焊接头。
![图片[23]-1.4 焊接方法及其表示方法-铆焊老刘铆工焊工笔记](/wp-content/uploads/2026/04/1775565959676_32.jpg)
图1-100 火焰钎焊
1—导管 2—套接接头 3—工作平台
(3)钎焊特点 与熔焊相比,钎焊具有以下的特点:
1)加热温度在钎焊时低于焊件金属的熔点,所以在钎焊之际,会出现钎料熔化然而焊件并不会熔化的情况。焊件金属的组织以及性能变化不多,在钎焊结束之后,焊件所受应力跟变形较少,能够用来焊接对于尺寸精度有着较高要求的焊件。
![图片[24]-1.4 焊接方法及其表示方法-铆焊老刘铆工焊工笔记](/wp-content/uploads/2026/04/1775565959676_33.jpg)
图1-101 掘进机截齿的焊接结构图
2)一些钎焊,能够一次去焊几条、几十条钎缝乃至更多,所以生产率较高,就像自行车车架的焊接之类的。钎焊还能够焊接别的方法没办法焊接的结构、形状繁杂的焊件。
3)钎焊能够焊接同种金属,它也适宜于焊接异种金属,甚至金属与非金属也能够被它焊接,像核反应堆里金属与石墨的钎焊之类,因而其应用范围十分广泛。
4)钎焊接头,其强度相较于基体金属而言较低,其耐热能力相较于基体金属而言也是低的,它的装配要求比熔焊要高,它是以搭接接头作为主要形式的,这使得结构质量有所增加。
(4)给出应用示例,展示出来的是图1-101所呈现的掘进机截齿的焊接结构形态示意图,一种是源于高速钢以及硬质合金而组合焊接形成的结构样式,在选用材料时分别采用了和YG1等,因两者制作材质有所差异不同,能够让钎焊所具备的长处特点达成充分发挥的状况。
如图1-101所示,
这意味着,硬质合金,是运用钎焊这种方式,镶嵌进高速钢基体当中的,其周围存在角焊缝。再者而言,912呈现出的是火焰硬钎焊。













