瞅一瞅一个关于钣金拆图的实例,于这个实例当中弄成三块板子,分别是左边有一块,右边具备一块,而中间做成一块板子便可。紧接着运用分割命令先开展分割,随后再来绘制折弯图以及下料图。
首先,在直接编辑里找分割命令,先将左边那块单独拿下来,再把右边那块单独拿下来,接着选择剪裁工具,先是第一个面,再是第二个面,后是第三个面,最后是第四个面。这边利用四个面进行分割,对面的操作也是如此,对面已有两个面已被使用,随后把两个面补上去。
进行零件切割操作时,将左边的那一块予以选中,接着把右边的那一块也选中,不要去做勾选动作,要是想要切除试题的话,点击对面的那个位置且要精准无误。
![图片[1]-SW钣金拆图 下料展开,完美呈现!-铆焊老刘铆工焊工笔记](/wp-content/uploads/2026/03/1772622135852_0.png)
随后,运用组合命令将其进行组合,疯狂选取,选择添加操作,点击组合,此地如同那儿一样进行组合。组合完毕之时,此刻已然成为三块板子的状况了,左右两侧的两块板子是九十度的板子,十分简便,径直选取插入折弯选项,挑选零点一的折弯半径,于此给出九十度的折弯系数,给出一点七的折弯扣除数值,选取一个面并点击对勾,这便是第一块板子,第二块板子同样如此,选定一个面然后点击对勾。
·接下来是中间的这块板,中间的这块板能不能直接敲走呢?模型上面原本就存在着一些错误,这里有一条线,对吧?与此同时这里的焊缝还没有开,所以使用叉指弯肯定会报错。
·接下来,在转接至转钣金之前,开端先把释放槽开具出来,于底面构建草图,并将隐藏类型选定为隐藏线可切,在此处绘制一个矩形,此矩形紧挨着钣金的壁厚来开具,开具出一个矩形的释放槽,该矩形的宽度赋予至零点一便可。
![图片[2]-SW钣金拆图 下料展开,完美呈现!-铆焊老刘铆工焊工笔记](/wp-content/uploads/2026/03/1772622135852_1.jpg)
![图片[3]-SW钣金拆图 下料展开,完美呈现!-铆焊老刘铆工焊工笔记](/wp-content/uploads/2026/03/1772622135852_2.png)
这个矩形过来的距离是多少呢?应当从这个位置开始开启,由于释放槽相较于这道折腕而言要更大一点, 所以在这儿留一个比板后大一点五的释放槽。
那么接着去制作一条重音线,进行镜像的操作选择,将镜像轴进行框选操作处理,在此处同样是对镜像轴做镜像处理,随后实施特征切除动作,直接把焊缝切割出来,在切割时事实上只要怎样超出这条线便行了是不是对吧,就好比给予它一个十五点的对应数值,如此这般直接就把缝隙切割好了。
![图片[4]-SW钣金拆图 下料展开,完美呈现!-铆焊老刘铆工焊工笔记](/wp-content/uploads/2026/03/1772622135852_3.jpg)
切割完成后进行钣金转换操作,选中钣金并转换为钣金,此处情况相同,仍是先前那些纸张,接着选定固定面,再选取折弯边,折弯边同样有两条,这也是其中一条,操作完成后点击对号,如此三块板的转板筋便制作完成了。
![图片[5]-SW钣金拆图 下料展开,完美呈现!-铆焊老刘铆工焊工笔记](/wp-content/uploads/2026/03/1772622135852_4.png)
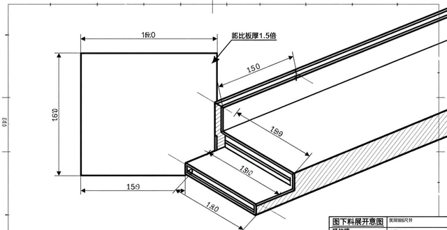
·先找到插件功能,选择当前打开的模型,在这里改个名字便可开始转换。之后利用插件大批量化的出下料图以及折弯图,借助这般方式,插件能够帮我们把三张下料图呈现绘制于同一个图纸之中。并且在此处,能够同时看到其上显示着折弯线,以及折弯的方向所在情形。倘若有需要,还能够将其放大来查看一番,会发现图纸下面还有版后数量等一系列参数情况。
![图片[6]-SW钣金拆图 下料展开,完美呈现!-铆焊老刘铆工焊工笔记](/wp-content/uploads/2026/03/1772622135852_5.jpg)
·最后还有三张折弯图,也是利用插件把批量出多尸体出图。
这个模型的拆除工作就完成了。









![2025年中国钣金加工行业现状、产业链结构及发展全景研判:智能化是行业未来发展趋势[图]-铆焊老刘铆工焊工笔记](https://83ch.com/wp-content/uploads/2026/02/1771729218647_0.png)


