CAD钣金图纸
制造业里,CAD钣金图纸是那种绝对不能缺少的技术文档,它会把钣金件的形状细致说明,它会把钣金件的尺寸精确表述,它会把钣金件的材料清楚讲出,它还会把钣金件的制造要求完整呈现。
当进行看图识图这个行为的时候,首先需要去知晓那张图纸的基本视图情况,像是主视图这样的,还有俯视图,以及侧视图等等之类的。每一个视图都是从不一样的角度去展现出钣金件的结构状况。紧接着,就要去辨认图纸之中的线条以及符号,比如说实线它所代表的是能够看见的轮廓部分,虚线则是用来表示隐藏起来的部分,并且特定的符号是被用于去标记尺寸、公差以及加工要求的。
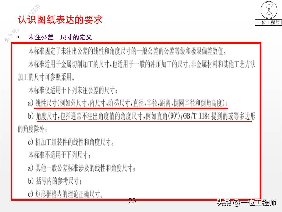
要认识图纸里的制造要求,得仔细去阅读图纸之上的文字说明以及技术要求,那些要求有可能涵盖材料类型、厚度、表面处理、折弯角度还有半径等,保证理解这些要求对确保钣金件的加工精度以及最终质量来讲是至关重要的。
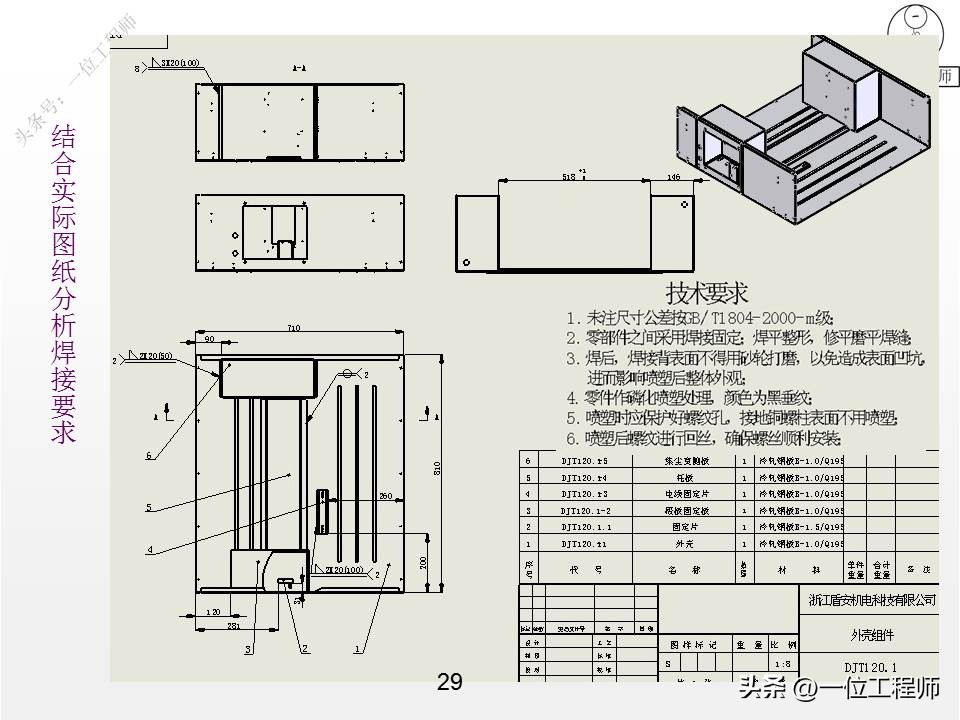
图纸里头的焊接内容描述,一般涵盖焊接类型,像是点焊、缝焊之类的,还有焊接位置,以及焊缝尺寸和焊接符号等。凭借识别这些焊接标记,操作人员能够清楚知晓焊接的位置以及方式,进而确保证钣金件的连接称得上牢固可靠。
42页PPT课件介绍(文末有机械等领域设计资料包)









































机械领域所需的资料合集,机电领域所需的资料合集,液压领域所需的,材料领域所需的,非标领域所需的,1000G的资料集合。
这里有全网最全的资料集合,能让你寻得真正可带来自信的资料,1000G机械相关领域的所有资料,其涉及范围特别广,详细讲,内容包含传统机械行业,还有机械加工,材料类,材料成型,电气行业,液压行业,机电类,机械传动,一千多份非标设备三维模型以及非标设计等诸多领域。
具体内容包含,文档手册类:有千余份工程师设计手册,还有机械设计手册,以及机电相关手册,并且有液压类手册,另外有自动化类手册,再者有材料成型手册,以及非标设计手册等等,同时还涵盖所有历史文章的PPT源文件等。
有着常用的设计工具,其中包含500套自动计算表格,这500套表格里有各类传动校核表格,还有选型设计表格,以及尺寸自动计算表格,另外还有轴承校核表格,齿轮校核与设计表格等等。
针对视频教程类别,其中涵盖十余款常用机械设计软件教程,这些教程包含UG各版本的相关内容,还有CATIA的内容,也包含proe的内容,以及CAD的内容,甚至还有Adams等等的基础知识。

我确信,这共计1000G ,所有资料,对于促使你能力提升,必定会存有极大帮助。并且,于工作期间,当碰到与此相关问题之际,这些资料,同样能够给予颇为良好的指导效用。

PPT合集





若是有想要获取上述那涵盖1000G容量且与机械领域相关资料的情况,能够在后台给留言去咨询从而获取,一旦看到便会立刻及时进行回复的。











![2025年中国钣金加工行业现状、产业链结构及发展全景研判:智能化是行业未来发展趋势[图]-铆焊老刘铆工焊工笔记](https://83ch.com/wp-content/uploads/2026/02/1771729218647_0.png)
